Inflyttningsklart 1,5-planshus i Strängnäs
Här bor du med närhet till Sörfjärden-Mälaren med skogsområden runt hörnet. Nu finns en inflyttningsklar Villa Edvard från Älvsbyhus till salu – ett välplanerat 1,5-planshus som passar bra för den större familjen. Ta chansen att flytta in i ett nytt inflyttningsklart hus!
Mer om objektet
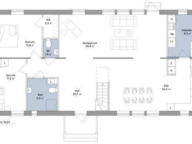
Nu finns en inflyttningsklar Villa Edvard från Älvsbyhus till salu – ett välplanerat 1,5-planshus som passar bra för den större familjen. Nedervåningen är färdiginredd om 129 m², medan övre plan är oinrett och färdigställs av nästa ägare. Till huset hör ett dubbelgarage, och det är beläget på en generös tomt om 1 187 m² i en rofylld miljö i Strängnäs. Här kombineras ett modernt och bekvämt boende med närhet till skog och natur.
Huset har på nedre plan 3 rum och kök, varav 2 sovrum. Nedervåningen erbjuder två badrum, varav det större är utrustat med dusch. Det rymliga och öppna kök- och vardagsrummet skapar utmärkta sällskapsytor och utgör hemmets naturliga samlingspunkt. Tvättstuga och groventré ligger i praktisk anslutning till köket. Planlösningen är genomtänkt med en tydlig uppdelning mellan social del och mer privat sovrumsdel, vilket ger ett funktionellt boende. På övervåningen finns goda förberedelser för nästa ägare att själv färdigställa ytan. Huset har 34-gradig taklutning, förhöjt väggliv och dubbla takkupor som skapar en rymlig och ljus känsla på övervåningen. Här finns plats att drömma fritt och inreda efter eget tycke och smak – kanske med extra sovrum, ytterligare badrum, klädkammare eller ett eget vardagsrum till tonårsbarnen.
Just detta hus har tidigare använts som Älvsbyhus visningshus under åren 2022–2026 och är därför utrustat med flera spännande tillval. Fasaden på hus och garage är färdigmålade. Parkeringsplatsen är grusad. Den plana och finplanerade tomten med gräsmatta och stort trädäck i kvällssol erbjuder goda möjligheter och kan enkelt utformas efter eget önskemål. Kommunalt vatten och avlopp. Elförbrukning om ca 5 469 kWh/år exklusive hushållsel. Observera att planritningen endast visar en visualisering av husmodellen och kan innehålla vissa tillval som det verkliga huset inte har.
Läget erbjuder ett lugnt och trivsamt boende med närhet till service, handel och skolor. Härad ligger naturskönt vid Sörfjärden i Mälaren, en vik som bjuder på omväxlande och rik natur med badplatser och fina promenadstråk. Trots det lantliga läget har du nära till allt du kan önska – endast 200 meter till busshållplats, cirka 2 km till badplats och 7 km till Strängnäs centrum. Påfart till E20 nås på bara 500 meter, vilket gör det enkelt att ta sig vidare, och med bil når du Stockholm på cirka en timme. I närområdet finns även Solberga köpcentrum med ett brett utbud av mataffärer och butiker. Från Strängnäs resecentrum går tåg med täta avgångar till Stockholm på cirka 46 minuter, och buss 820 tar dig smidigt in till Strängnäs på omkring 10 minuter. För barnfamiljen finns Äppellundens förskola i området med verksamhet för barn i åldrarna 1–5 år.
Utgångspris för nyckelfärdigt hus inklusive tomt: 4 900 000 kr (hus och garage).
Gå på husvisning obemannat
För att du ska kunna upptäcka huset när det passar dig bäst erbjuder vi obemannad visning. Du kan besöka det alla dagar kl. 05.00–23.00. Vid huset finns instruktioner: scanna en QR-kod och lås upp med BankID. Därefter kan du i lugn och ro uppleva huset, utforska planlösningen och känna efter om det här kan vara ditt nästa hem.
Vill du hellre boka en personlig visning går det också bra – kontakta oss så hittar vi en tid som passar!
Bilder
Jag hjälper dig gärna
Mer nyproduktion
Beställ vår huskatalog
Helt utan kostnad




























